Create Your First Project
Start adding your projects to your portfolio. Click on "Manage Projects" to get started
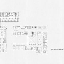
Hospital Design
Date
2021
Location
Bangladesh
My concept for designing the hospital with a focus on functionality and efficiency is crucial for ensuring optimal patient care and staff workflow.
Having separate entries for emergency, outpatient department (OPD), diagnostic, and inpatient department (IPD) allows for streamlined patient flow and reduces congestion at the hospital entrance. Patients can easily access the specific area they need without confusion or delay.
Dividing the hospital into distinct zones for OPD, IPD, emergency, and diagnostic services helps to organize patient care and optimize resource utilization. Each zone can be tailored to meet the specific needs of patients and staff, enhancing efficiency and quality of care.
Connecting OPD departments with their corresponding diagnostic zones minimizes the distance patients need to travel for tests and consultations, reducing wait times and improving overall patient satisfaction. This integration promotes collaboration among healthcare professionals and facilitates seamless coordination of care. Designing corridors to connect different hospital departments ensures easy navigation for patients, visitors, and staff. Clear signage and wayfinding aids further enhance accessibility and reduce confusion, contributing to a positive patient experience.























































































